空座ノ間
#2階リビング #無垢床 #シースルー階段 #シースルー手摺 #造作工事 #ベンチ
#間接照明 #トリプルガラス #ベルバーン #目隠しフェンス #タイル土間 #天窓 #折り上げ天井 #借景Design Plan
「空座ノ間」
この家の名前です。
敷地は、東西南は家に囲まれ、北に道路、道路向かいは大きな駐車場があります。
2階からだと六甲の綺麗な山並みを望むことができる立地でした。
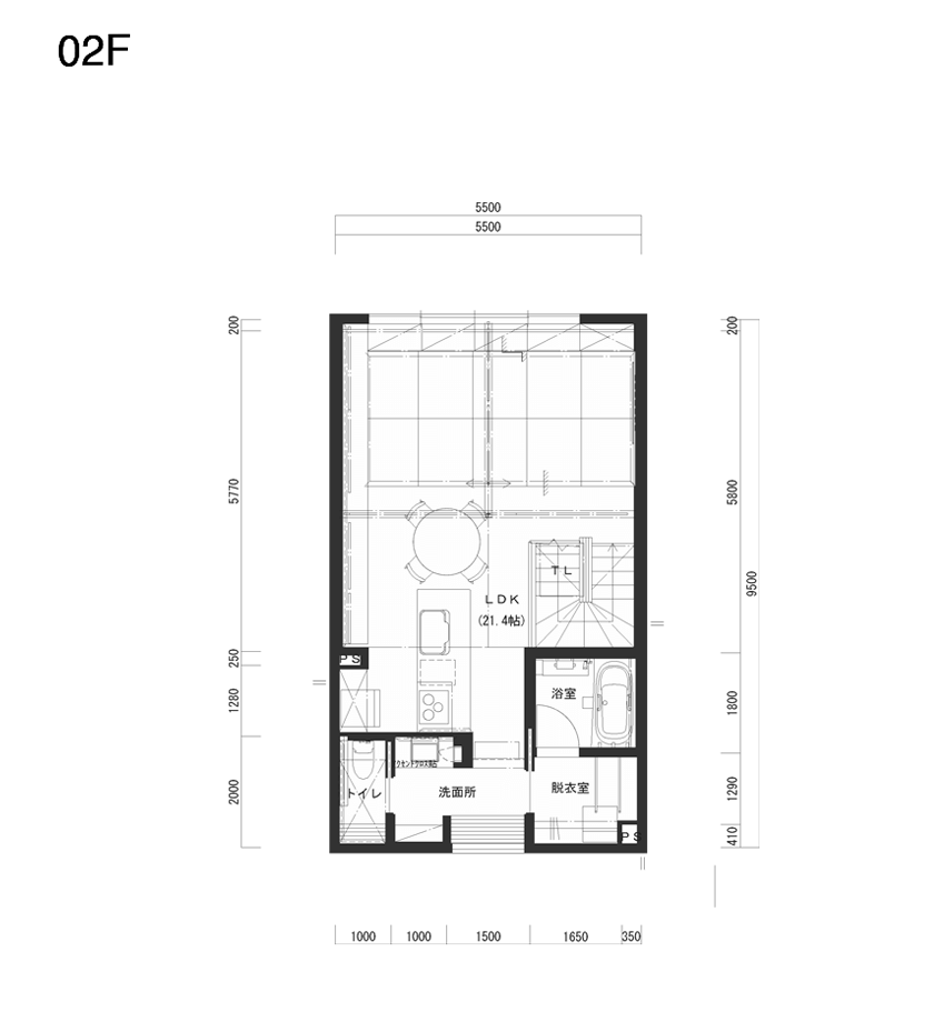
これらの条件から、2階の北側にリビングを配置。
「ソファはあまり座らない」というお施主様のお話を伺い、ソファレスに。
その代わりに、ゴロゴロできる畳リビングをご提案しました。
そして、綺麗な空と六甲山の景色を窓辺から座って眺めることができるよう、ベンチを造作。
ベンチ下は引出になっており、リビング収納として使えます。
天井は、空間の広がりをより感じていただけるよう、開放感のある勾配天井に仕上げました。
また、階段の腰壁を取り払い、木製のシースルー手摺を採用することで、LDKとのつながりをより感じられる設計としています。
さらに、階段室の上部には大きな天窓を設けました。
青空や星空を楽しめるのはもちろん、LDK全体にやさしい光を取り込み、1階の玄関まで自然光が届くよう工夫されています。
アプローチでは、背の高い木調アルミフェンスを前後に設け、その間をジグザグに歩いていくスタイルをご提案しました。
アプローチが長くなると荷物を運ぶのが面倒だという声もお聞きしますが、コンパクトな敷地の場合、歩く分だけ敷地の体験面積が増えるため、実際より広く感じるという効果もあります。
またアプローチを抜け、玄関に入ると、タイル土間とシースルー階段が奥までドーンと抜けています。
広さを演出するため、土間とホールとの境目を作らず「その辺で靴を脱いでください」スタイルです。
また、メインの窓はトリプルガラスを採用いただきました。
冬は半袖でも過ごせるほど温かいです。









