DIG DUG
#2階リビング #無垢床 #ベルバーン #オーバーハング #ロフト #アイランドキッチン
#パントリー #リビクロ #ファミクロ #ロックガーデン #間接照明 #家事動線Design Plan
建築地は、約30坪の土地で構成された住宅街の一画。
北に道路、道路向かいに隣家。
さらに、西、東、南にも隣家が密集していました。
このような立地から、「どこから採光を取るか」がとても重要でした。
一つは、北側の道路から。
もう一つは、南東方向の隣家と隣家の隙間から。
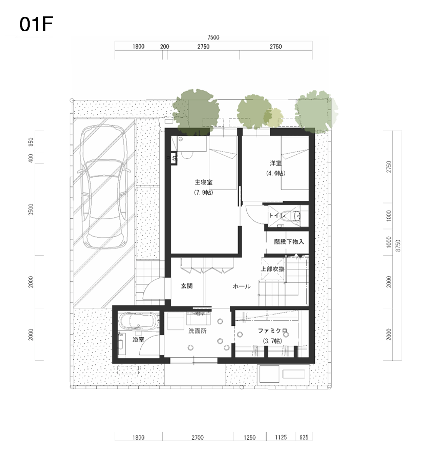
この二点の採光から、LDKは2階に配置することにしました。
南北に窓をつくり、抜けもつくっています。
「LDKをより広く」するため、最低限必要なトイレと収納以外は1階へ。
さらに、立体的に広さを感じられるように、天井を勾配天井にしています。
ご主人様の単身赴任用の物も多かったので、勾配天井の一部はロフト収納としました。
次に、玄関は、あえて敷地奥に配置しています。
これは、奥に歩くことで、敷地を広範囲で体感し、広く見せる効果があるからです。
道路側とアプローチには割栗石を敷き詰め、ロックガーデンに。
山採りの高木と合わせ、街並みの中で、特別感を演出しています。
途中追加で「雨の日に、なるべく濡れないよう玄関に入りたい」
というご要望がありましたので、二階を2mオーバーハング。
運転席側に屋根をかけ、雨の日でも乗り降りが快適になりました。
今回、お施主様は他社での契約をキャンセルし、ご自身が本当に納得できる住まいづくりを選び直されました。
キャンセル費用についても「よい勉強になった」と前向きに受け止め、後悔はまったくないと語っておられました。
家は、車のように簡単に買い替えられるものではありません。
だからこそ、「本当に納得できる選択をすること」が何より大切なのだと、お施主様の姿勢からあらためて気づかされました。










