空と繋がる家
#無垢床 #ファミリースイート #空 #2階リビング #シースルー階段 #珪藻土 #ペンダント照明 #間接照明 #借景
Design Plan
建築地は築40年前後の家が建ち並ぶ住宅街の1区画。
南に道路、東西に隣家、北側に大きな溜池の借景が存在する敷地。
まず、設計士と現地を見学。
「2階の北側にリビングがいいかもしれない」
全くの同意見でした。
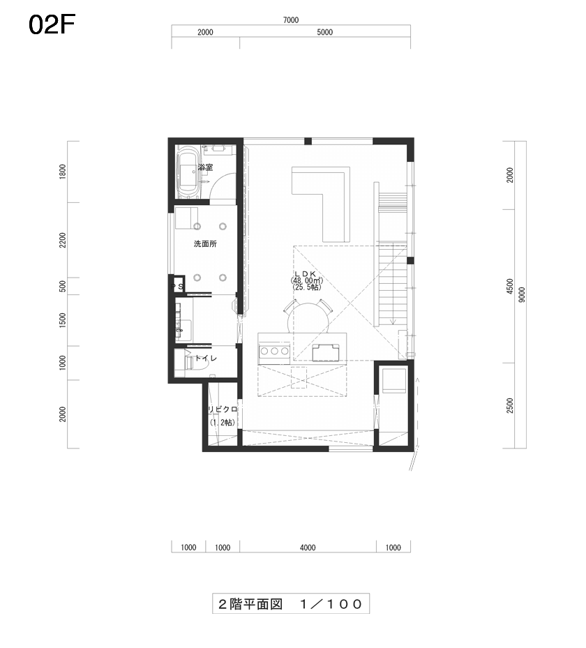
2階をより広く、そして心地よくつくることを一番のコンセプトにおき、間取りを構築していきました。
敷地に対して、南はなるべく閉じ、北側に開く。
2階リビングの特性を活かし、屋根勾配にあわせて天井が高くなる勾配天井を採用しました。
勾配天井でできた壁に窓をつくり、キッチンから空が切り取って見えるようにもなっています。
そして、2階を1階よりオーバーハングさせ、外観にも少し特徴を持たせるようにしています。
素材にもこだわりました。
外壁は目地の無い、グレーの吹付仕上げ。
基礎も、軒裏も、吹付仕上げにしています。
床材はナラ材の無垢床。
また家の一部の壁を珪藻土の塗り壁を採用し、質感のある力強い空間にしています。
玄関はシースルー階段を採用し、奥行き感ある空間に。
階段上の窓からこぼれ落ちる光の線とそれを映す綺麗な壁も絶妙なバランスで成り立っています。
最後は照明です。
きれいな空間には、きれいな壁と天井が存在しています。
提案に便利なダウンライトとの戦いでした。
なるべくペンタントライトを中心に採用頂き、ダウンライトは必要最低限に。
昼の顔と夜の顔。
どちらも素敵になるように考えた「空と繋がる家」です。








