ドマニワ
#土間 #シースルー階段 #杉無垢床 #アイランドキッチン #グレー #共働き #2階洗面バス #書斎 #吹抜け #モディファイ #間接照明
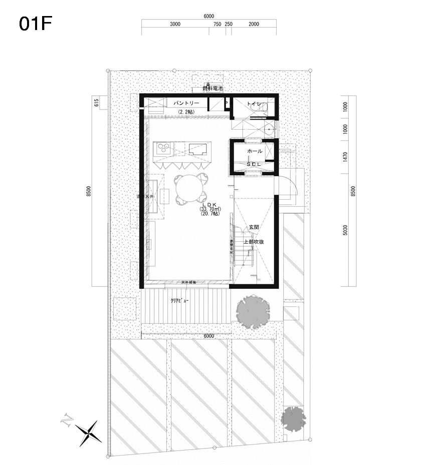
Design Plan
建築地は、新興住宅街の1区画。南に道路、東西北側には隣家が存在する土地。
建物をなるべく“コンパクトに” 、 “コスパよく” 、でも“坪数以上に広く感じる”、
そのような家づくりが今回のテーマでした。
土地が決まり、契約まではとりあえずの間取りで走りました。
契約後、設計士を交えて間取りの打合せ。
2回ほど設計士が提案をしましたが、まだ間取りがしっくりと来ておらず、迷われているご様子でした。
私から思い切って…、
「玄関からすぐLDKで、大きな土間があり、かつシースルー階段と吹抜けがある開放的な家ってどう思いますか?」と聞いてみました。
「めっちゃいいです!」と施主様。
そのようなやりとりから、この間取りが誕生しました。
玄関に入るまでは、なが~く一直線に伸びたアプローチ。
出迎えてくれる背の高い植栽は、施主様が山まで行って選定されたもの。
また、玄関は正面から見えないように考えました。
玄関を開け、中に入ると、大きな土間。
そして、目の前にシースルー階段がアクセントになり、出迎えてくれます。
吹抜けもからみ、とても明るく開放的に感じます。
メインの床材は杉の無垢床を採用。
グレーのアクセントクロスとの相性も抜群です。
そして驚くなかれ、この家にはテレビがありません。
何と、天井にスクリーンが格納されていて、プロジェクターで映して見ることができます。
テレビレス時代の到来です。
また一つ、時代の流れを感じることができる家が誕生しました。
次は何がなくなって、何が増える時代がくるのでしょうか?











