みのりのいえ
#ウォールナット #アクセントタイル #石張り #ベルバーン #リビング階段 #家事動線 #アイランドキッチン #エコカラット
Design Plan
「みのりのいえ」この家のタイトルです。
広島県在住の施主様、建築地は兵庫県。
通例よりも距離がある分、打合せの回数は少なく、メールでのやりとりも多くなりました。
「メールより対話」「対話よりも対面」。私が重要視していることです。
メールは、時間を気にせず、端的に物事を伝えるには有効です。
でも、目的だけを伝えているため、その意図や考えまで汲み取ることは、なかなか難しいものです。
そのような中で、打合せ毎に、兵庫県までお越しくださり、素敵な思いが実ったという意味を込めこの名前をつけました。
建築地は、北に道路、西に隣家、東は将来隣家が建ち、南に一段下がった隣地も将来家が建つ場所。それぞれを条件に、間取りを構成していきました。
1階は、大きなLDKを南側へ、Lにつながるコーナー和室。
階段はコミュニケーションを重視したリビング階段。
キッチン横には、大きなパントリーを設け、リビング収納も兼用します。
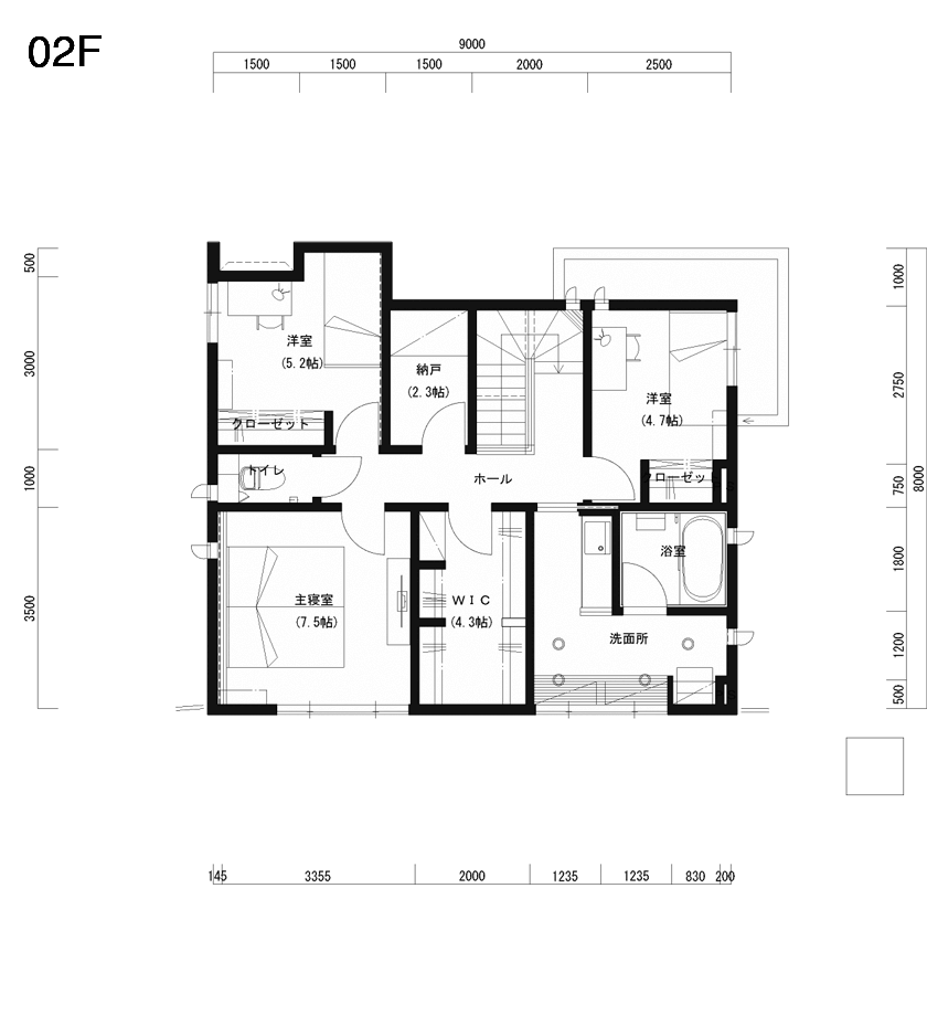
2階は、洋室が3部屋とファミリークローゼット、納戸、水回りです。
水回りを2階へ上げることで、LDKを広くとることができました。
また、収納も2階です。家事動線も短く。バルコニーを無くし、室内干しスタイルへ。
近年、外の空気環境は決していいとは言えません。バルコニーなしの提案もかなり増えてきました。
そして、最後はファミリークローゼット。
ホールからアクセスすることで家族全員で服を共有できます。
実例を介し、対話から生まれた「みのりのいえ」。
ホームパーティーにお招きくださり、素敵な空間で最高のひと時でした。








