懐楽の家
#無垢床 #吹抜け #吹抜けリビング #あらわし梁 #リビング階段 #ペニンシュラキッチン #対面キッチン #シューズクローク #パントリー #アクセントタイル #ウッドデッキ
Design Plan
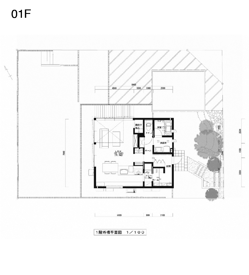
建築地は、北東の角地。北と東に道路、西に隣家、南はアパートの玄関。
通常の間取りでは「南にリビング」となりますが、道路が広く、北側の隣家よりも敷地が一段上がっていることも考慮し、あえて北側にリビングを配置しました。
西側は隣家より手前に空き地(施主様の土地)があるので、北西のコーナーに大きく窓を取り、さらに吹き抜けとつなげることで開放的で明るいリビングが実現しました。
吹抜け上の天井は勾配天井にし、仕上げ材も木調のクロスを採用。
さらに、構造の梁やシーリングファンもインテリアのアクセントとして提案しました。
2階の居室は、南に2部屋、東に1部屋を配列。
朝起きて、部屋から出ると、吹き抜けを介して、窓の外に広がる街並みの広々とした景観を望むことができるように設計しています。
「玄関は小さく設計」
大きな玄関よりも、2WAY動線の確保を優先。
共働きを続けていく上で大切なのが生活動線です。
帰ってきて、買ったものをすぐにしまうことができる。
整理整頓ができなくとも、来客からは見えないように設計しました。
また、玄関の役割は通路として割り切ることで、あえてリビングに入ったときの解放感を演出するように考えています。
こだわるところ、そうでないところ。
テーマを絞り、ひとつ、ひとつ、意味を持たせることで、
オンリーワンの家がまたひとつ誕生しました。





