光を紡ぐ積層の箱
#店舗併用住宅 #二世帯住宅 #二階リビング #ベルバーン #アウトドアのリビング #造作工事
#ベンチ #吹抜け #中庭 #シャワーコア #カーテンレス #格子 #シャーウッド #植栽 #間接照明 #フロスDesign Plan
「光を紡ぐ積層の箱」
この住まいにつけられた名前です。
1階は食品加工の店舗。
2階はLDK+水まわり+お母様のお部屋。
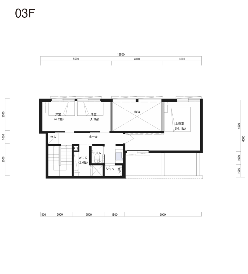
3階は寝室と子ども部屋、そしてシャワールーム。
いわば「店舗併用の同居型二世帯住宅」です。
三階建ての建物に囲まれ、東側には大きな幹線道路。
そんな立地の中でも、中庭と吹き抜けを計画することで、光をたっぷり取り込みながらプライバシーも守れる家になりました。
1階から3階までをつなぐ中庭と吹抜のおかげで、カーテンレスで暮らせるLDKが実現しています。
キッチンとダイニングの上には大きな吹抜が広がり、家の中にいても開放感を感じられます。
バルコニーには、アウトドアリビングとして活用できるようにベンチを造作しました。
ちょっと外に出て腰掛けるだけで気分転換ができる。
そんな居場所を考えました。
「外へ出るハードルを下げる」
そういった細やかな工夫を大切にしています。
ご家族全員が日常的に使ってもらってこそ、住まいに本当の価値が生まれます。
大切なのは、“作っただけで終わらない”こと。
施主様が如何に家を使いこなしていただけるかどうかが、作り手の腕の見せどころだと考えています。
もう一つの大きなテーマは、二世帯住宅の「住み分け」でした。
しかし実際には、大きな課題にはなりませんでした。
打合せを重ねていく中で、見えてくる人間関係。
ご主人様とお義母様と個別に話を伺いましたが、特に隔たりはなく、日常的に一緒に過ごされているご様子。
寝室を階で分け、シャワールームを3階に配置することで、ほどよい距離感を確保しています。
御引渡後、何度か訪問させていただく機会がありましたが、中庭に出るたびに、空を見上げて、最高の気持ちになりました。
光と風、そして家族のつながりを感じられる、まさにその名の通りの住まいです。








