木のトンネルがある家
#吹付外壁 #木のトンネル #トンネル #モルタル #モールテックス
#ペンダントライト #丸テーブル #無垢床 #ナラ材 #コーナーサッシ #造作工事 #R壁 #アーチ垂れ壁 #Y chair #ウッドデッキ #平屋 #塗壁 #珪藻土 #借景Design Plan
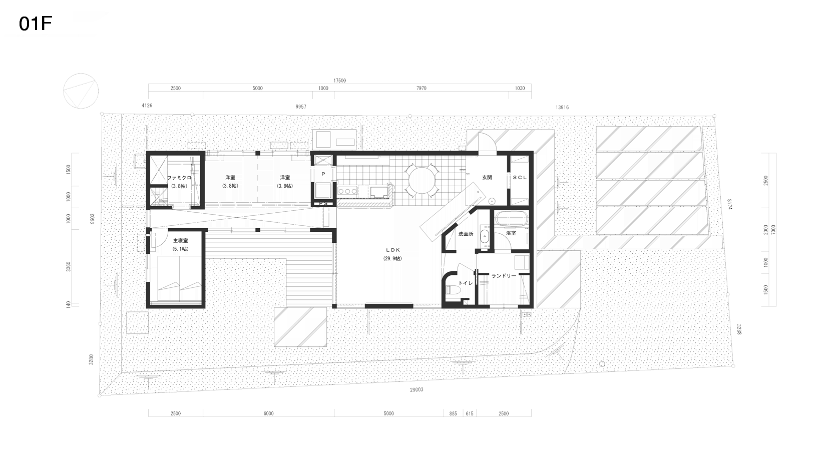
建築地は、淡路島にあるご実家の畑でした。
北側に道路、道路向かいに隣家。
当初、西側には隣家がありましたが、工事前に更地に。東側と南側は畑です。
北側は山と空が望めるロケーションでしたが、車の交通量が多いことと、南側に比べ電線が気になったので、南をメインとして開くことになりました。
打ち合わせを重ねてたどり着いたテーマは、「最高の平屋をつくる」。
そのひとつ、玄関を開けると大きな木のトンネルが出迎えてくれます。
トンネルの先には、南側の綺麗な山と空が段々と広がって見えるように設計されています。
ドラえもんのアニメで似たようなコンセプトの道具がありましたよね?
「この家ならでは」をつくりたくて、敷地の条件に合わせてご提案しました。
そして、素材にもこだわりました。
・床はナラ材の無垢床
・壁と天井は珪藻土の塗り壁
・玄関とキッチンの床はモルタル仕上げ
・キッチン前と洗面カウンターはモールテックス
奥様のこだりで、R部分も二か所表現させて頂きました。
・玄関のシューズクロークの垂れ壁
・トイレと洗面室の壁
後から大工さんに聞いた話では、壁をRにする作業で3日かかったそうです。
また、天井と壁もノイズが入らないように、きれいに残すことを心がけました。
最後に中庭のウッドデッキ材ですが、イペ材の価格が高騰していたので、マニルカナ材を採用しました。
このウッドデッキをはじめ、無垢床や植栽など、自分たちの手でメンテナンスできる所もつくり、手を掛けた分、愛着が湧いて永く住んで頂けるような家をめざしました。











