共に成長する家
~緑と暮らす~
#無垢床 #モリアン #ナラユニ #シースルー階段 #家の中に植栽
#植栽 #緑を感じることができる #窓辺 #ベンチ #造作工事 #間接照明 #R壁 #吹抜 #トモイエDesign Plan
建築地は、区画整理があった綺麗な分譲地の一画。
北側に道路、南と東は空地で将来家が建つ可能性があり、西側は同時期に土地を購入された新しい建物が存在します。
南側の隣地は建築地より少し上がっているため、家が建つと隣家から見下ろされたり、日当たりもどうなるか不明です。
そこで、条件が確定しているところから間取りを構成していくことにしました。
一番は、条件が変化しにくい北側の抜けを利用すること。
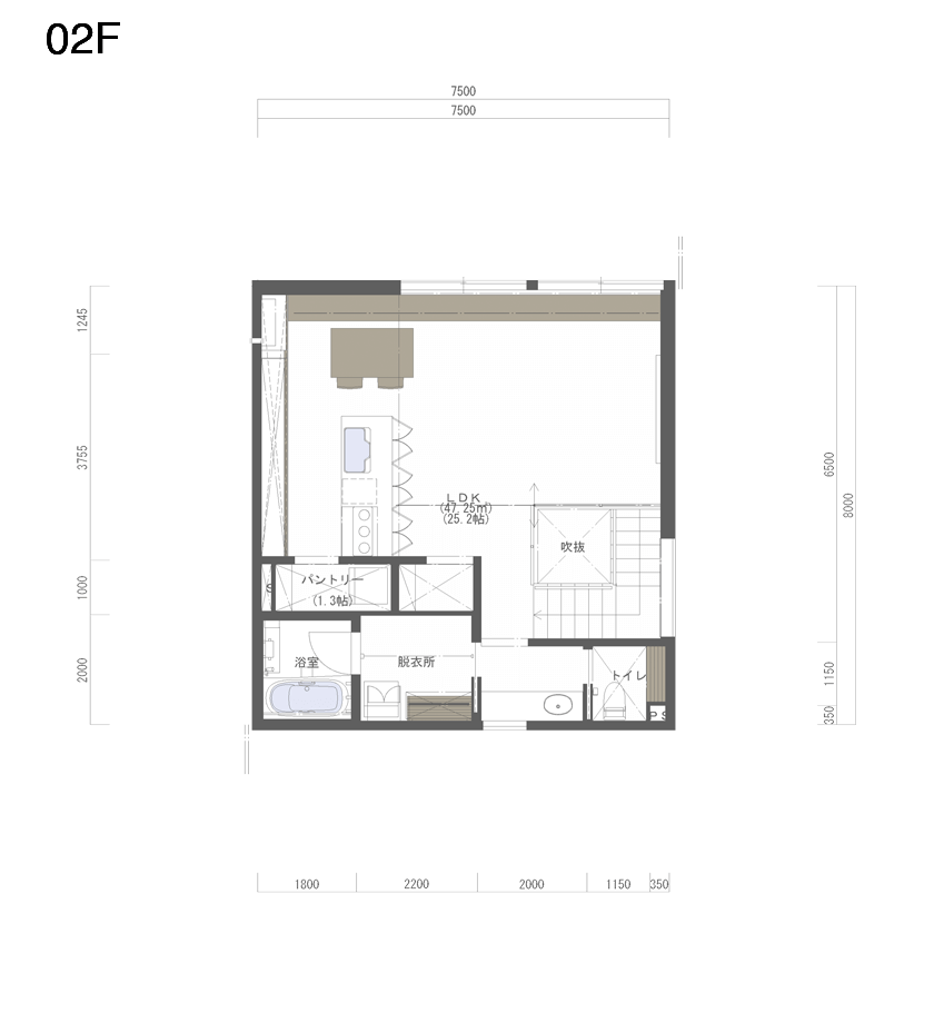
道路があり、かつ前の家が平屋という条件から、北側に開く二階リビングを提案しました。
また、窓辺の居心地をより充実させるために、造作でなが~いベンチも作りました。
ベンチの一部は、おもちゃなどでごちゃごちゃしてしまいそうなものを収納できるように引出しにしています。
そして、一番の見所は、家の中に観葉植物を植えたことです。
玄関から家に入ってすぐ見えるように、また、吹抜をかえして二階からも葉先を見ることができるように考えています。
「いつでも緑を感じることができる家」。
お話しをする中で、この施主様なら、このコンセプトを受け止めてくださるのではないかと提案し、ご採用に至りました。
正直なところ、予算は当初より結構オーバーしてしまいました。
打合せ終盤、奥様が、
「皆様が一生懸命考えてくださった案なので、コストダウンなしで、すべて採用します」
とおっしゃってくださいました。
甘えてはいけないと思いながらも、施主様と設計士の熱い想いがあったから、この家ができたと感じています。






