フラットボックスがある家
#ベルバーン #ロックガーデン #2階リビング #大開口 #借景 #間接照明 #パントリー #書斎 #杉無垢床
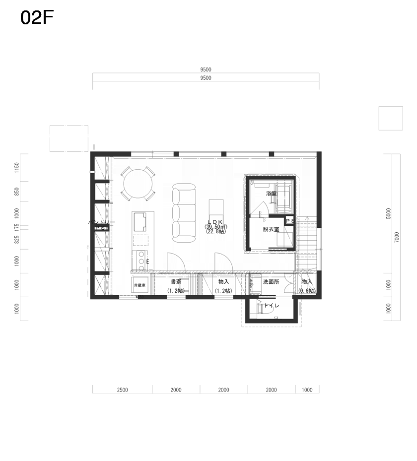
Design Plan
建築地は、古い住宅街の1区画。南に道路、東西北に隣家という立地。
北側の隣家は一段下に落ちており、2階から北側へ景色が抜けているという特性を持っています。
そこで、LDKは2階の北側に配置しました。
一般的に「北側=暗い」というイメージをお持ちの方も多いと思いますが、立地によって暗くならないケースもあります。今回のケースがそれにあたります。
さらに、北側LDKから見える景色は、南からの光を受けた明るく綺麗な景色となります。
これを体感できるよう、階段を上がってすぐのところに大きなFIX窓を取りました。
それに連ね、2M×4枚、合計8Mの大開口から山の借景を体感できるよう考えました。
2階の中心にグレーのBOXがありますが、ここは風呂と脱衣所となっています。
このBOXをぐるりと回遊、体感できるように階段の腰壁もガラスにしています。
南側に配置しているパントリーや書斎の建具や壁もフロアレベルから2200の高さに抑え、奥行が感じられるように設計しています。
天井面も綺麗に残せるように、2200の壁に間接照明を仕込みました。
1階床は、モリアン・杉・無垢フローリングに。
2階床は、モリアン・挽板・GREENS・サペリマホガニーとなっています。
そして、外にはチャコールのBOX。
中にはグレーのBOXがあり、外と中で統一感を持たせた「フラットボックスがある家」が誕生しました。









