一文字の平屋
#ウォールナット #イペ #ウッドデッキ #平屋 #ベルバーン #書斎 #吹抜け #折り上げ天井 #アイラドキッチン #回遊動線 #廊下 #天井木目 #軒裏 #ファミリースイート #シューズクローク #和室
Design Plan
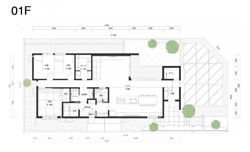
建築地は、少し古い住宅地の1画。
北東の角地で、北と東に道路、道路の先には隣家。
また、西と南は二階建の隣家のある住宅地。
日当たりのいい南側は隣家がこちらに迫ってきており、西側も同じ状況でした。
そこで、道路の抜けの特性を活かし、北東に中庭を設けて、そこからそれぞれの部屋を配置しました。
また、中庭と室内をつなげ、なるべく空間が大きくなるように考えました。
外壁のベルバーンを室内の一部にも採用して連続性を持たせたり、床のウォールナットとウッドデッキ材のイペ床を繋げたり、天井材と軒裏の素材を無垢のウォールナット材で揃えるなど、ウチとソトが融合したデザインになっています。
また、以前に建っていた建物に立派な石が使われていましたので、解体の際に捨てずにおいておき、門柱前と中庭に再利用しました。
古くても風合いがあるものは大切にしたいですし、一から大きな石を買うとなれば、かなり高価になってしまいます。
「使えるものは使う」
いつの時代になっても大切なコトだと思っています。
そして、もう一つのコンセプトが東西の抜けです。
リビングの奥にぐ~んと伸びた廊下とその先の窓の景色。
なるべく省スペースになるように間取りを考えると、廊下の突き当りにトイレをつくってしまいがちです。
でも、ここに窓があると奥行き感が増し、空間がとても気持ちよくなります。
ダイニングとキッチンの上部も吹抜けにしています。
「どこにいても気持ちいい」
それを一番に考えた家の誕生です。









