クロハコの離れ
~庭を共有するいえ~
#ピットリビング #離れ #間接照明 #アイランドキッチン #コーナー和室 #大開口 #2階洗面バス #隠し部屋 #多目的デスク
Design Plan
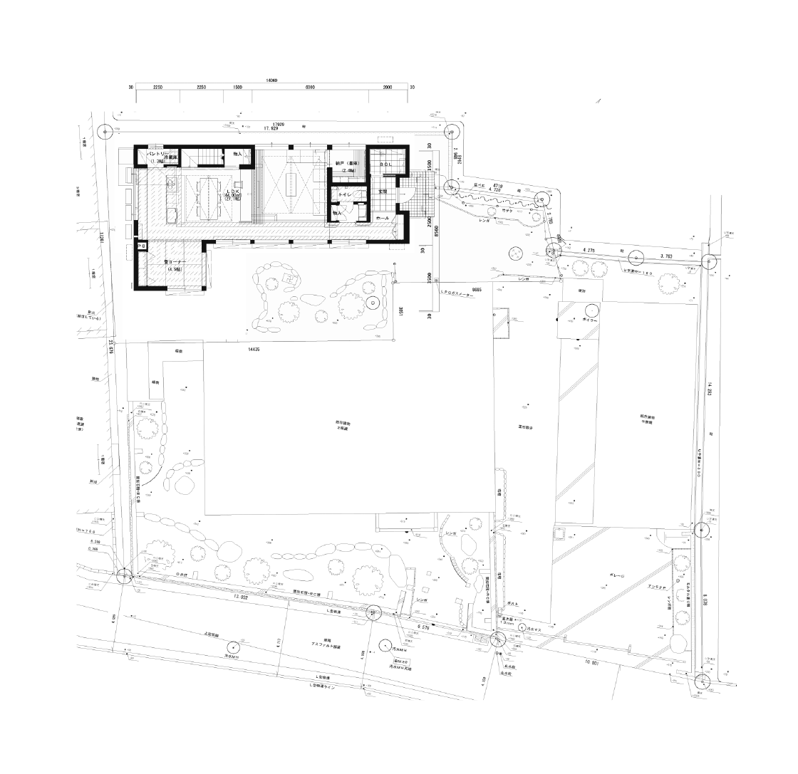
南側には母屋と既存の和庭園があり、西側には隣家、北側と東側には所有地の田畑が存在している土地。
この条件から、当初は北側の大きな広がりを利用し、北に開くプランを予定。
ただ、防犯面を気にされており、既存塀は残す計画へ。
プランを変更し、素直に日当たりのいい南側を開き、母屋の和庭園を共有するコンセプトができあがりました。
リビングは、実例見学をしていただき、ピットリビングを採用。
ソファーがあっても背もたれ程度しか使っていないというご意見から、クッションを多用し、ゴロゴロ寝ころんで寛ぐというスタイルになりました。
一番最初、ご主人と我々が共感したテーマがありました。
『忍者屋敷みたいな家にしたい』
回転扉や、一見すると壁だけど、それが扉にもなっている…というイメージ。
玄関からリビングへと続く壁に「ケイミューのソリド」という建材を貼り、アクセントに。その壁が扉になっていて、書斎へと続く建具の役割をしています。
そんなワクワクする提案を採用していただいた貴重な物件。
もちろん、見た目のだけのデザインに終わらず、住みやすさを考えたデザインも追求。
共働きであることを大きなテーマとし、水回りを2階に配置。
洗面は、室内干ができるように広くとり、バルコニーとつなげ、家事動線を短くしました。
後からDYIをする時間もなかなか取れないニーズから、収納は最初から作り付けを提案。
いつも温かく出迎えてくださるご両親のスパイスが、この住まいをより愛に包まれたモノにしてくれているのではないかと感じています。
まさにオンリーワンな住宅ができあがりました。







