シロハコ
#ピットリビング #斜め配置 #白箱 #アイランドキッチン #吹抜け #吹抜けリビング #バルコニー無し #室内干し #シューズクローク
Design Plan
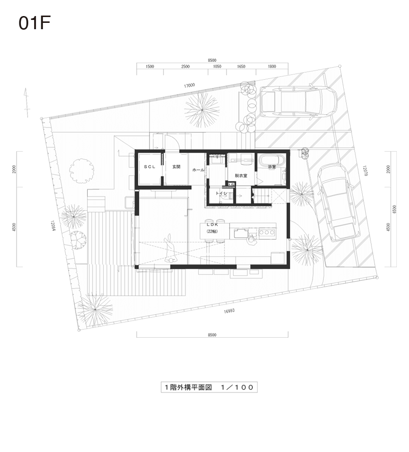
6.5m×8.5mの総二階。バルコニーもなく、シンプルな四角の家。
外観は、シンプルに格好良く。外壁は白色の陶器の大判タイル。屋根も寄棟でシンプルに。
家は、木のいえ。だから、木質感を大事に、床は無垢の質感を、壁にも木の優しさを。
優しさに包まれた木のハコをイメージして、この家を【シロハコ】と名付けました。
敷地の特性を活かし、建物の配置は斜めに。ガーレジ、植栽、ウッドデッキスペースをバランスよく配置しました。
リビングは段差のあるピットリビングを採用。床材は少し厚めのカーペット。休日はゴロゴロして、スローライフを満喫。クッションしか置かないので、リビングも広く見えます。
床レベルから360㎜落ちる段差を設けることによって、視線が空へ。電柱、電線が無い地域の特性から、外との繋がりをより表現できました。
また、構造は木造。
木造らしさを表現するため、吹抜けには構造梁を。玄関から階段室まで伸びる壁にはアクセントの木を貼りました。
床材は、モリアンのグリーンズのアッシュを採用。2㎜の挽板フロアなので、無垢の質感を肌で感じながら幅広で床暖房も採用できる床材です。
アクセント壁に関しても、同じ材質を使うことで、インテリアの統一感を図りました。
背面は、白をベースに。
膨張色である白を採用することで、より広く見える工夫を。また、白は、観葉植物が映え、忙しい毎日に安らぎを与えてくれます。
これからもずっと幸せな毎日と思い出をたくさん作って頂きたいと思っています。








