ハワイアンカフェの家
#シースルー階段 #玄関とつながるLDK #アイランドキッチン #サーフィン #ハワイアン #趣味を飾る家 #木パネル
Design Plan
建築地は、当社分譲地の1画。大通りからひとつ入った南向きの大きな土地。
南北に視線の抜けがあるという条件から、南北に抜ける提案を考えました。
家のテーマは『ハワイアン・カフェ』です。
奥様はワーキングホリデーで海外に長期間滞在された経験があり、また、ご夫婦の共通の趣味がサーフィン。
「サーフボードとか飾ってそれが似合う家にしたい」そんな会話の中から家のテーマが決まりました。
また、奥様がお好きな店舗が「Eggs’n Things」。カジュアル・ハワイアン・レストランです。私もパンケーキを妻と食べにいったことがありイメージはすぐに共有できました。
木と石と白を基調とした内装に、趣味のサーフボード。イメージを確認しながら内装関係を決めていきました。
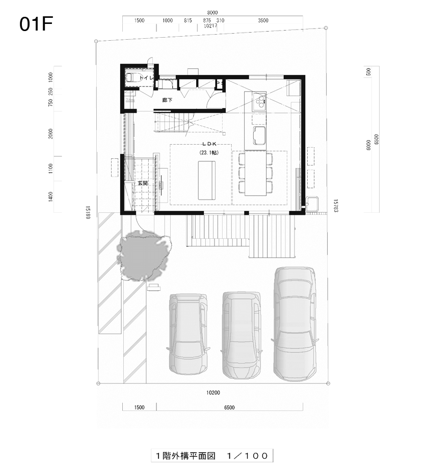
間取りで一番の課題は、29坪の家を「いかに広く見せることができるか」でした。
そこで提案したのが、ワンルームです。玄関とリビングの天井をつなげる。階段はコストが高くなりますが、シースルー階段を採用し、奥行きある空間を演出。敷地の特性を活かし、南と北の抜けがある箇所に大きな掃き出し窓を設置しました。
さらには、「共働きを将来も続けたい」というニーズから、水回りを二階に配置しました。洗う、干す、しまうを同一階でできる間取りにすることで家事時間を大幅に短縮できます。その分、リビングを広くとることができました。




