石屋川の住三層
#三階建 #2階リビング #ウッドフェンス #バルコニーテラス #シースルー階段 #クランカー照明 #アクセントタイル #挽板フロア #半ビルトインガレージ
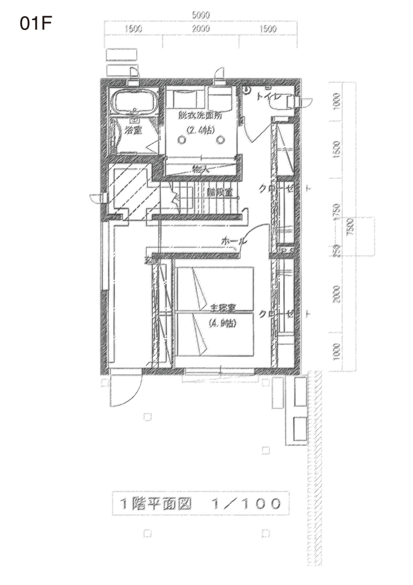
Design Plan
結婚を機に、ご新築をご希望されていた20代後半のT様。
まずは、土地のご購入からのご計画。土地はご自身で見つけられ、建築会社を探しておられる段階でお声掛け頂きました。
当初、お知り合いの工務店でプランをされていらっしゃいましたが、色々お話をお伺いする中で、工務店での建築に少し不安をもっていらっしゃると感じました。値段は安いが、本当にこれで耐震性が大丈夫であるとか、住んでからの保証や、施工体制などなど。そこで少しでも建築知識を学んで頂きたいと考え、積水ハウスのオーナー様宅を何件も一緒に拝見し、ご不安を取り除いて頂きました。(遠方では大阪の熊取や阪南市まで)そして、私とT様との家作りがスタートしました。
阪神石屋川駅から徒歩圏内のこの土地。南側道路向かいの家が2階建のため、3階からの眺望が抜け、六甲アイランドが一望できる立地を生かす設計に。
階段はシースルー階段で、階段を吹抜けと絡めることと、家の中心に配置し、天窓を設けることで、1~3階すべての部屋に光をおとすことを考えました。2階からは周辺の家の目線が入ってくる可能性がありましたので、ビルトインガレージ兼、目隠しのできるテラス案をご提案。
キッチンにはタイル、そしてアクセント照明にはトーヨーキッチンのクランカーを採用頂き、とても見栄えのよいLDKが実現できました。
『いつでも見に来て下さい~♪』オーナー様のお言葉です。









敷地面積:84.96㎡ 25.70坪
1F床面積:37.50㎡ 11.34坪
2F床面積:37.50㎡ 11.34坪
3F床面積:35.00㎡ 10.58坪
延床面積:110.00㎡ 33.27坪
担当
ハウジングコンサルタント