よっつのかぞく
#二世帯 #無垢床 #漆喰 #ハンモック #ウッドデッキ #DIY #天窓 #ロフト
Design Plan
『あれ?どなたがご夫婦?どなたのお子様?どなたのご両親様?』『まず、自己紹介してください!』これが施主様との初めての出会いでした。
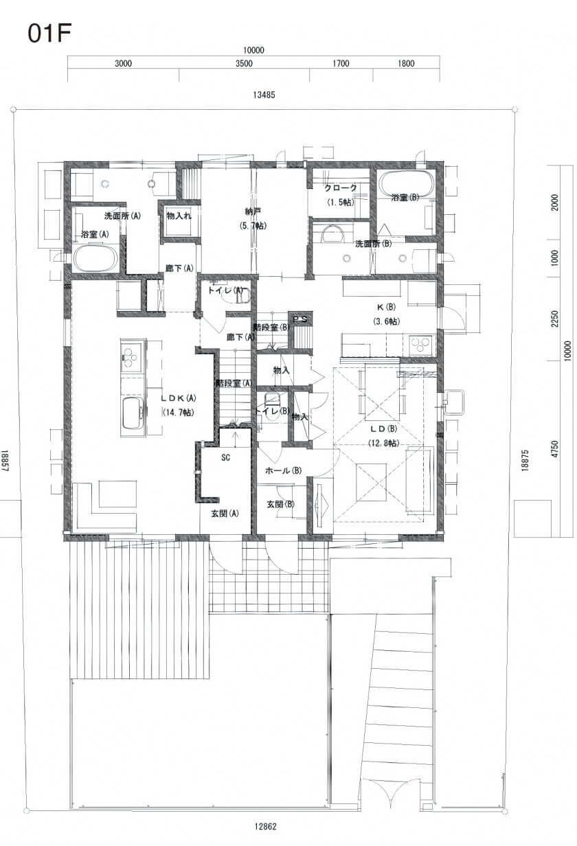
4世帯住宅9人家族のお住まい。私も初めての試み。
他メーカーも何社かご検討されていらっしゃいました。4世帯分の決定権者がいらっしゃり、価値観もバラバラ。一体どんなお住まいになるのか楽しみでなりませんでした。間取りはご家族のライフステージに合わせて決めていきました。
メインはご兄弟の2世帯。それにご両親様とおばあ様の世帯。
お兄様世帯はお子様のアトピーを気にされていたので自然素材を。弟様世帯はコストと性能重視。正反対のニーズ(笑)。
お兄様世帯にはまず、自然素材で作った実例をご覧頂きました。そこで触れた施主様と拘りを実現した私への期待感で積水ハウスを。お父様は他社を。
最後は『佐藤ちゃんで家建てたい』。お子様の一言で決まりました。
4世帯住宅の計画を通して様々なことを学びました。4つの価値観のぶつかり合いから物事をどう解決するか?完成したものよりも完成するまでに至るプロセスを大事にしたこのお住まい。他のどのお住まいよりも自己表現ができたのではないかと思います。
最近、私が感じること。それは、『素敵なお住まいができた』と達成感ある住まい作りには、必ず素敵な施主様が存在していたことです。つまり、施主力です。
心から『このひとのために』と思える魅力的な施主様。まさにヒトとモノとの融合。
住まい作りを通してお互いが成長できた。そう思える住まい。これからのお付き合いがとても楽しみです。





【私は旧校舎のイメージが好きだった】
こんなイメージの家がほしい。
本を見せて伝えたら、同じ本を持ってた。
不思議ですね…。
これが縁なのかな?
住まい作りをして初めてそう感じた。
【勉強机がダイニング】
軽くって、丈夫。傷がいったってそれが味になる。
傷があって、使い古した感じで。
でもそれが存在感があって。
そんな床材がほしかった。
だから我が家は床暖房がないんだ。




