□の巣(しろしかくのす)
#リビング吹抜け #回遊動線 #アクセントタイル #アッシュの床材 #土間トイレ #洗面吹抜け #シアタールームがある家 #天窓 #クランカー #Lクラス #リビング階段
Design Plan
平成23年12月末に完成した【□の巣】。
利便性のいい駅前のマンションで一人暮らしをされていたご主人様と、職場の近くに一人暮らしをされていた奥様。結婚を機に考えられていた新築の計画は、まず土地探しからでした。
ご主人は利便性を重視。奥様は幼稚園の先生をされていたことから、子育てできる環境を重視。そこで問題となったのが、コスト。共働きといえども、当時20代後半のお二人では現居近く駅前での計画は難航。
土地探しをする中で、三田市の当社の分譲地に。決定の要因は大きく二つ。一つ目は二人のご実家の中間地点であること。二つ目は子育ての環境が整っていたこと。
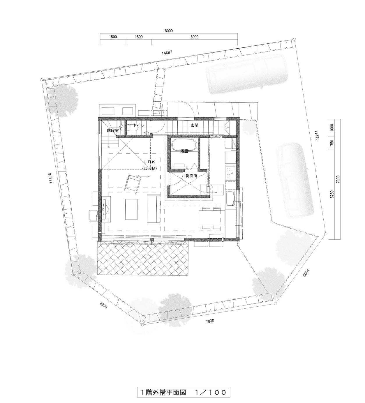
次に、分譲地内の137区画もある中でどこがいいのか?
私と設計担当とで現地まで足を運び区画を提案し、南、西、東の3方角地が選ばれた。本来道路とは家が建たない。それを利用することで道路の先が家の至るところから見えるように配置を考えた。敷地と平行に配置するといった概念は捨て、道路の先に見える広がりを重視している。
設計に対するご主人のご希望は、「展示場くらいの大きな家がほしい」。
コストも考慮し、設計を進める中で、7×8の実例を大阪の熊取市まで見学。玄関から二階の居間に至るまで、間仕切りのない大きな空間を体感され、この大きさで十分だというご意見を頂き、急遽その現場近くの喫茶店で打合せ。その場で生まれた3案の中の1案がこの家の間取りとなりました。
昔暮らしていた家の話から、ワンルームマンションでの二人暮らしの住まい方を詳細に聞き取り、主に不満点を改善策としてまとめ設計に反映。現場が出来てからも驚きがあったという奥様も、今はこれが最高だというご意見を頂いています。
一番大事なことは『住みこなせるかどうか』。オーナー様にはその資質があった。それだけのこと。まさにこれが『施主力』ではないでしょうか?










