
畳で繋がる住まい
#畳リビング #仕事コーナー #書斎コーナー #本棚 #ウッドデッキ #無垢床 #2階水廻り #室内干し #築山
Design Plan
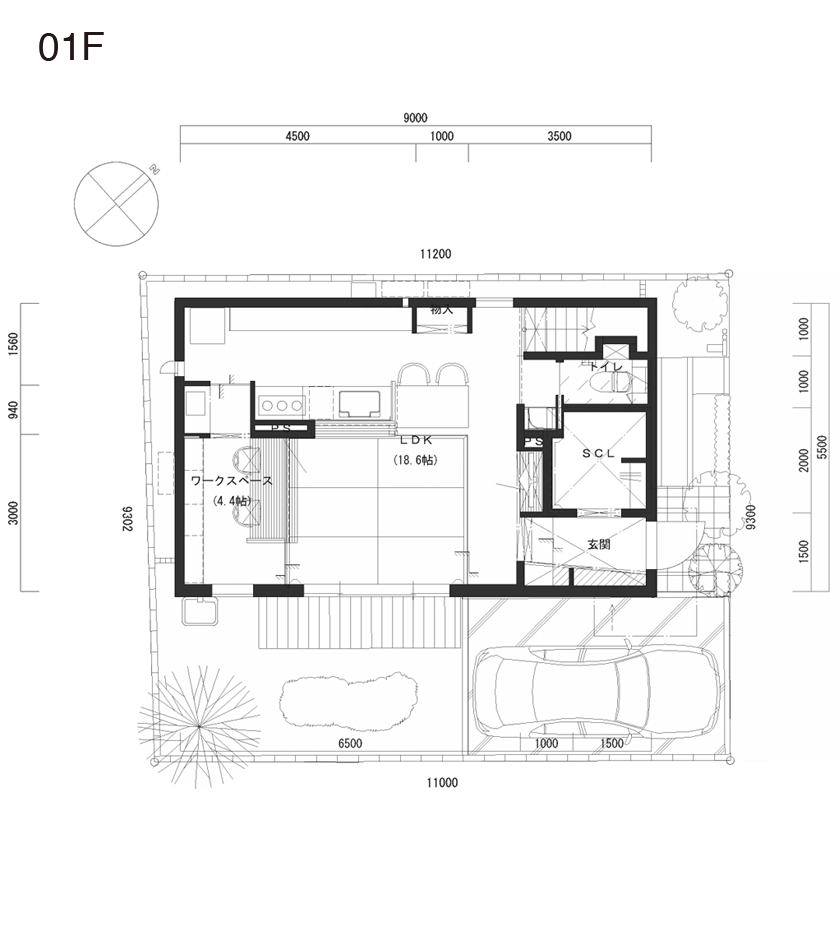
当敷地は当社分譲地で、閑静な住宅街の一画に位置します。1階のリビングは小上がりの畳スペースとし、そこを囲うようにキッチン・ダイニング・仕事コーナーを配置しました。それにより、御家族はどの居場所にいても、繋がりを持つ事が出来ます。また、2階水廻りを採用し、洗面室と繋がった室内干しスペースを確保し、共働きの御夫婦にとって家事が極力負担にならないよう計画しました。